Skip To Content

710 Howard Street

SALISBURY, MD 21801
  • $209,000
  • STATUS: Closed
  • ON SITE: 2241 Days
  • ID#: MDWC106592
Sold - 03/24/2021
$209,000
SOLD - 03/24/2021
  • 3
    BEDS
  • 0.12
    ACRES
  • 2
    BATHS
  • 1
    1/2 BATHS
  • 1,350
    SQFT
  • $0
    $/SQFT
Neighborhood:
Type:
Single-Family Home
Built:
2020
County:

School Information

Elementary School:
Middle School:
High School:

Description

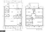
Brand new home now under construction with high end finishes throughout. Open floor plan makes the most of every inch. Gorgeous & durable LVT flooring, granite counters in the designer kitchen w/stainless steel appliances. Large living room w/2 closets, laundry room, & half bath complete the first floor. Spacious upstairs master bedroom w/walk-in closet & full, en-suite bath. 2 additional bedrooms, and a 2nd full bath. Call today & choose your own finishes! For less than some rentals, you can have the peace of mind of a brand new home. EXTERIOR photos are of this home - INTERIOR photos are of a similar home, and for reference only. Plans, listings, photos, renderings, sizes, acreages - all for reference only, and may show upgrades & options not included in list price.. Owner is a licensed realtor; agent has financial interest. Pricing & availability subject to change. Sizes, taxes approximate.

Monthly Payment Calculator



©2026 Bright MLS, All Rights Reserved. IDX information is provided exclusively for consumers' personal, non-commercial use and may not be used for any purpose other than to identify prospective properties consumers may be interested in purchasing. Some properties which appear for sale may no longer be available because they are for instance, under contract, sold, or are no longer being offered for sale. Information is deemed reliable but is not guaranteed accurate by the MLS or The Maryland & Delaware Group of EXP. Some real estate firms do not participate in IDX and their listings do not appear on this website. Some properties listed with participating firms do not appear on this website at the request of the seller. Data last updated: 2026-03-06T11:56:40.367.
www.easternshorehomesolutions.com/homes/102320764
Print Image

710 Howard Street SALISBURY, MD 21801

  • Price: $209,900
  • Status: Closed
  • On Site: 2241 Days
  • Updated: 66 min ago
  • ID#: MDWC106592
3
Beds
2
Baths
1
½ Baths
0.12
Acres
1,350
SQFT
$0
$/SQFT
2020
Built
Neighborhood:
None Available
County:
Wicomico
Area:
Wicomico Southwest (23-03)
Elementary School:
Pinehurst
Middle School:
Bennett
High School:
James M. Bennett
School District:
Wicomico County Public Schools
Property Description
Brand new home now under construction with high end finishes throughout. Open floor plan makes the most of every inch. Gorgeous & durable LVT flooring, granite counters in the designer kitchen w/stainless steel appliances. Large living room w/2 closets, laundry room, & half bath complete the first floor. Spacious upstairs master bedroom w/walk-in closet & full, en-suite bath. 2 additional bedrooms, and a 2nd full bath. Call today & choose your own finishes! For less than some rentals, you can have the peace of mind of a brand new home. EXTERIOR photos are of this home - INTERIOR photos are of a similar home, and for reference only. Plans, listings, photos, renderings, sizes, acreages - all for reference only, and may show upgrades & options not included in list price.. Owner is a licensed realtor; agent has financial interest. Pricing & availability subject to change. Sizes, taxes approximate.
Exterior Features

Architectural Style ContemporaryTransitionalColonial Construction Materials FrameStick BuiltVinyl Siding Garage YN No Other Structures Above GradeBelow Grade Parking Types On Street Patio And Porch Features Deck(S)Porch(Es) Pool No Pool Riparian Rights YN No Roof Architectural Shingle Water Access YN No Water Oriented YN No Water View YN No Waterfront YN No

Interior Features

Above Grade Fin SQFT 1350 Appliances Built-In MicrowaveRefrigeratorStainless Steel AppliancesOven/Range - ElectricExhaust FanWasher/Dryer Hookups OnlyWater Heater Basement YN No Below Grade Finished Area 0 Below Grade Unfinished Area 0 Cooling Central A/C Fireplace YN No Fireplaces Total 0 Heating Heat Pump(S) Heating YN Yes Interior Features Combination Kitchen/DiningDining AreaFloor Plan - OpenPrimary Bath(S)Upgraded CountertopsWalk-In Closet(S) Levels 2 Main Level Bedrooms 0 Spa YN No Upper Level1 Bedrooms 3

Property Features

Acceptable Financing ConventionalFhaVa Accessibility Features None Assessment Year 2019 Association YN No Building Name None Available Buyer Financing Conventional Central Air YN Yes Close Sale Terms Standard Sale Condo YN No Construction Completed YN No Cooling Fuel Electric Cross Street Alabama Federal Flood Zone YN No Foundation Details Crawl Space Heating Fuel Electric Hot Water Electric Incorporated City Name Salisbury Lease Considered YN No Navigable Water YN N New Construction YN Yes Original MLSNumber 302206596850 Ownership Interest Fee Simple Possession Settlement Sale Type Standard Senior Community YN No Sewer Public Sewer Structure Design Type Detached Tax Annual Amount 288.00 Tax Assessment Amount 14200.00 Tax Lot 0 Vacation Rental YN No Water Source Public Window Features Low-EEnergy EfficientScreens Zoning R5

Listing courtesy of Long & Foster Real Estate, Inc.: .


©2026 Bright MLS, All Rights Reserved. IDX information is provided exclusively for consumers' personal, non-commercial use and may not be used for any purpose other than to identify prospective properties consumers may be interested in purchasing. Some properties which appear for sale may no longer be available because they are for instance, under contract, sold, or are no longer being offered for sale. Information is deemed reliable but is not guaranteed accurate by the MLS or The Maryland & Delaware Group of EXP. Some real estate firms do not participate in IDX and their listings do not appear on this website. Some properties listed with participating firms do not appear on this website at the request of the seller. Data last updated: 2026-03-06T11:56:40.367.
 
https://bt-photos.global.ssl.fastly.net/brightmls/1280_boomver_2_302206596850-2.jpg https://bt-photos.global.ssl.fastly.net/brightmls/1280_boomver_2_302206596850-2.jpg https://bt-photos.global.ssl.fastly.net/brightmls/1280_boomver_2_302206596850-2.jpg
Logo
The Maryland & Delaware Group of EXP
107 Williamsport Circle
Salisbury MD, 21804